Rheiderland bleibt Rheiderland Kampagne

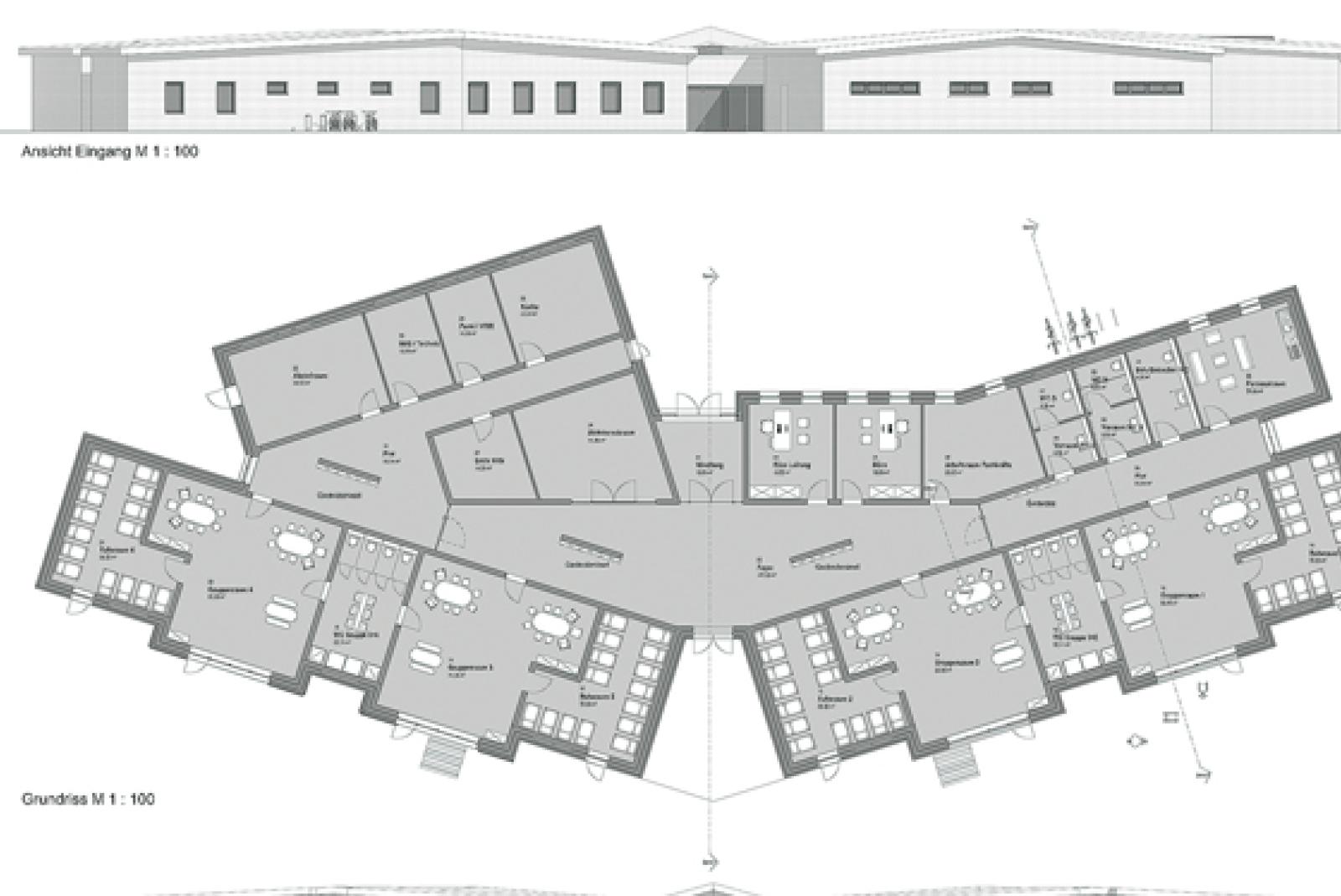
Flachbau mit Räumen für vier Krippengruppen

Entwurf für Neubau in Jemgum liegt vor - Zentrales Foyer soll bei schlechtem Wetter für Aktivitäten nutzbar sein


Der Entwurf von Architektin Meike Seidler mit der Eingangsfront (oben) und dem Grundriss der geplanten Krippe. © Grafik: Architekturbüro Meike Seidler
Der Entwurf von Architektin Meike Seidler mit der Eingangsfront (oben) und dem Grundriss der geplanten Krippe. © Grafik: Architekturbüro Meike Seidler

Nach einigen Umwegen nimmt der geplante Bau einer Krippe zur Betreuung von Kleinkindern in Jemgum nun konkrete Formen an. Die von der Gemeinde beauftragte Architektin wird im Ausschuss für Schule und Kindergarten am kommenden Montag ihren Entwurf präsentieren. ...